KHÁCH SẠN 3 SAO NHA TRANG

Sinhome là đơn vị thiết kế thi công nội thất khách san, resort

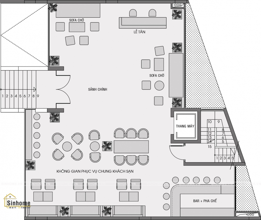
Dự Án: KHÁCH SẠN 3 SAO - NHA TRANG

CĐT: ANH BÌNH

Địa Điểm: NHA TRANG

Năm thiết kế thi công: 2020

KHÁCH SẠN 3 SAO NHA TRANG

KHÁCH SẠN 3 SAO NHA TRANG

KHÁCH SẠN 3 SAO NHA TRANG

KHÁCH SẠN 3 SAO NHA TRANG

KHÁCH SẠN 3 SAO NHA TRANG

KHÁCH SẠN 3 SAO NHA TRANG

KHÁCH SẠN 3 SAO NHA TRANG

KHÁCH SẠN 3 SAO NHA TRANG

 

KHÁCH SẠN 3 SAO NHA TRANG

KHÁCH SẠN 3 SAO NHA TRANG

KHÁCH SẠN 3 SAO NHA TRANG

KHÁCH SẠN 3 SAO NHA TRANG

KHÁCH SẠN 3 SAO NHA TRANG

KHÁCH SẠN 3 SAO NHA TRANG

KHÁCH SẠN 3 SAO NHA TRANG

 

Danh mục
Tin tức
G-0CPH47PYJD